By

CALL
TOUR PROPERTY
×

95 Elvira Way in Thorold for sale

MLS #:
X13006514
Type:
Att/Row/Twnhouse, 2-Storey
Approx. SQFT:
1500-2000
Basement:
Full, Unfinished
3 3
1 19.7 x 98.6 ft lot
PROPERTY HISTORY
List Date List Price Last Status Sold Date Sold Price Days On Market
0000-00-00 $00000 Ter N/A N/A N/A

Listed by Homelife Professionals Realty Inc.

95 Elvira Way is a Att/Row/Twnhouse, 2-Storey and is currently for Sale @ $739,900. Taxes in 2026 were $0.00.

More homes for sale under 700k in Thorold

Get it now for just. The 2-Storey on 95 Elvira Way has 3 bedrooms, 3 bathrooms, and is located on a 98.6 x 19.7 ft lot in the community of Rolling Meadows ... $659,800 HST rebate included, with finished basement. **To Be Built** Welcome to Elvira Way, nestled in the heart of Rolling Meadows, one of Thorold's fastest growing and most sought after communities. Proudly built by Marken Homes, a trusted name in Niagara known for quality craftsmanship and lasting value, this exclusive collection of six freehold two-storey townhomes offers the perfect blend of comfort, style, and location. Each home features a thoughtfully designed layout with 3 spacious bedrooms, 2.5 modern bathrooms, and an inviting main floor with 9' ceilings and custom maple kitchen cabinetry. Additional highlights include asphalt driveways, contemporary finishes, and a functional layout ideal for growing families, first time buyers, or busy professionals. Take advantage of the new government HST rebate on new construction homes, helping improve your cash flow and making homeownership more affordable. Buying new also means lower maintenance costs, modern energy efficient construction, and peace of mind with builder warranties, a smart investment for today and the future. Ideally located just minutes from everyday conveniences: 9 minutes to Brock University, 9 minutes to Niagara College (NOTL Campus), 15 minutes to Niagara College (Welland Campus), 10 minutes to Costco, Wal-Mart, and major retail, and only moments from the world famous Niagara Falls. Enjoy easy highway access, nearby parks, schools, and a vibrant family friendly neighborhood. Completion is estimated in approximately one year. Secure your future home today in this growing community and don't miss this rare opportunity to own a brand new freehold townhome built to the highest standards by Marken Homes. Live where quality meets convenience. Contact us today to reserve your unit.

STAINLESS STEEL APPLIANCES AND LAUNDRY APPLIANCES OR $5000 DECOR DOLLARS. OVER $50K OF ADDITIONAL BONUS.

The address 95 Elvira Way was listed for sale (MLS# X13006514) on Wednesday, April 15, 2026.

WHAT'S YOUR HOME WORTH?

Click here to get an instant estimate and track its value over time.

  • Date Listed: Wednesday, April 15, 2026
  • Listing Brokerage: Homelife Professionals Realty Inc - Disclaimer: The information contained in this listing has not been verified by Homelife Professionals Realty Inc and should be verified by the buyer.
  • City: Thorold

    More 3 bedrooms homes for sale in Thorold

  • Neighbourhood: Rolling Meadows
  • Major Intersection: Barker Pkwy
  • Full Address: 95 Elvira Way, Thorold, L2V 0M7, ON, Canada
  • Kitchen:
  • Amenities:
  • Taxes: $0.00 (2026)
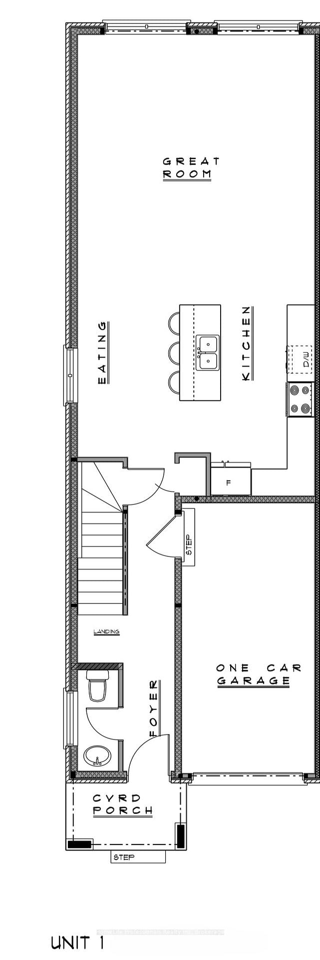
Foyer6 x 6 ft36 sq ft
Kitchen10 x 14 ft140 sq ft
Breakfast8 x 10 ft80 sq ft
Great Rm17 x 19 ft323 sq ft
Primary12 x 19 ft228 sq ft
2nd Br12 x 12 ft144 sq ft
3rd Br10 x 10 ft100 sq ft
Laundry5 x 5 ft25 sq ft

Recently sold comparables in Rolling Meadows

Similar homes for sale

WHAT'S YOUR HOME WORTH?

Click here to get an instant estimate and track its value over time.