By

CALL
TOUR PROPERTY
×

2147 Wateroak Drive in London North for sale

Asking price
$839,000
Estimate (Apr 16)
$805,673
MLS #:
X13005524
Type:
Detached, 2-Storey
Approx. SQFT:
2000-2500
Basement:
Finished
3 3
2 4.07 x 110.57 ft lot

Listed by Royal Lepage Signature Realty.

2147 Wateroak Drive is a Detached, 2-Storey and is currently for Sale @ $839,000. Taxes in 2026 were $5,131.16.

More homes for sale under 800k in London North

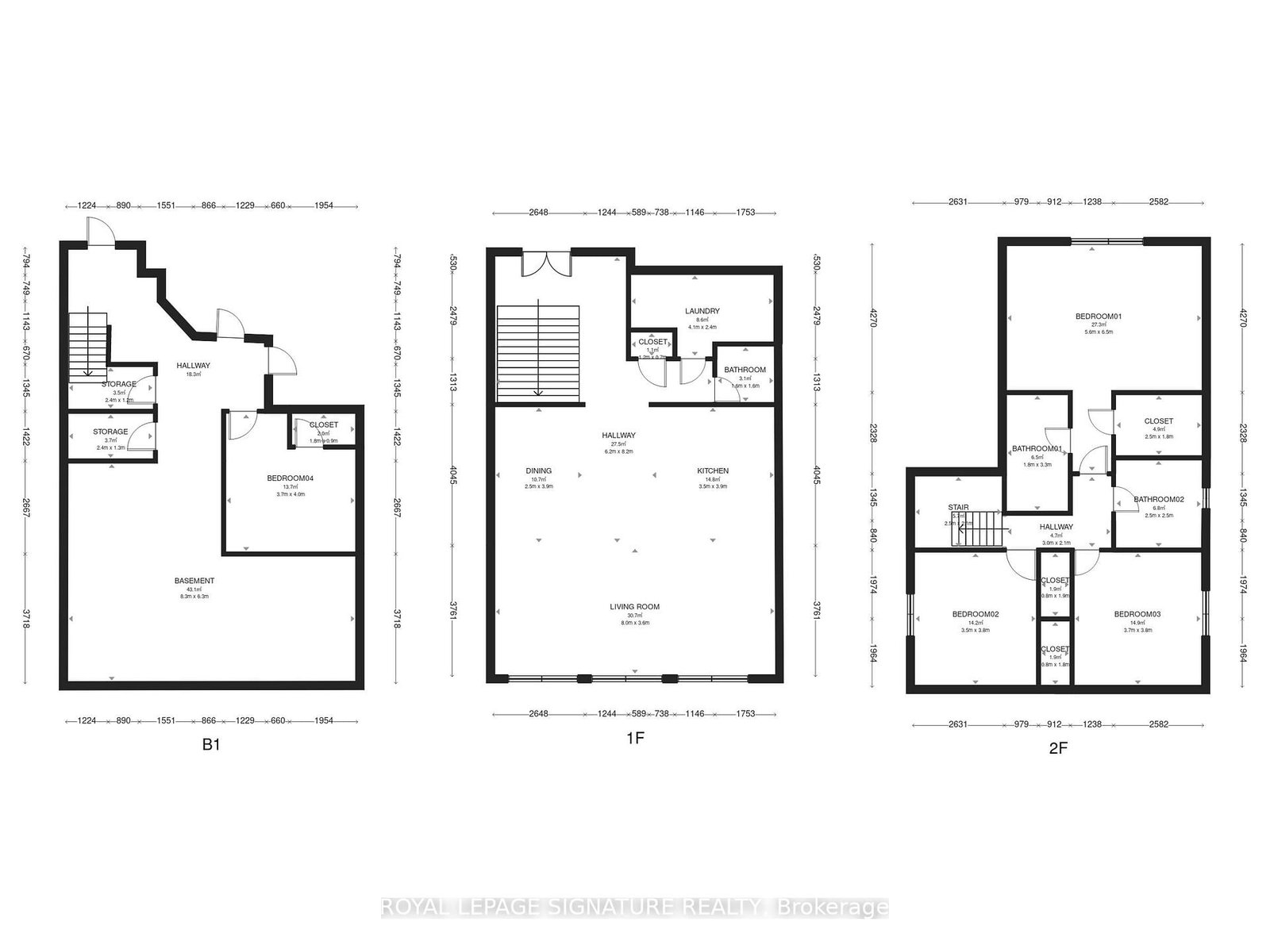
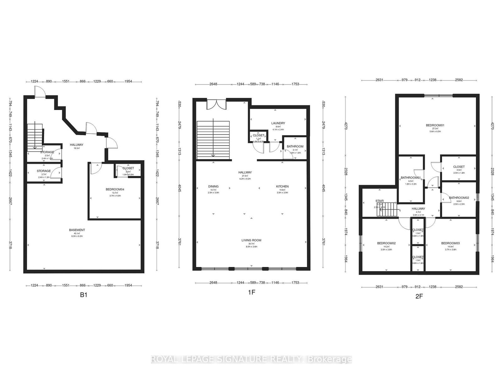
Welcome to this stunning, modern 2-storey detached home located in highly sought-after Northwest London. The 2-Storey on 2147 Wateroak Drive has 3 bedrooms, 3 bathrooms, and is located on a 110.57 x 4.07 ft lot in the community of North S . This beautifully upgraded residence offers exceptional living space with a fully finished basement-perfect for growing families and entertainers alike. Step inside to a grand 2-storey foyer with elegant ceramic tile, leading into a bright and spacious open-concept main floor featuring 9-ft ceilings, a massive great room with soaring 13-ft cathedral ceilings, and an entire wall of windows and patio doors overlooking the private, fully fenced backyard. The gourmet kitchen is a true showstopper, complete with full-height cabinetry, granite countertops, a large centre island with breakfast bar, and stainless steel appliances including a gas stove. The upper level offers 3 generous bedrooms, including a spacious primary retreat with walk-in closet and a private ensuite bath. Convenient main floor laundry adds to everyday functionality. The fully finished lower level expands your living space with a large rec room, games area, home office/den, cold cellar, and rough-in for an additional bathroom-ideal for future customization. Loaded with upgrades: over 100 pot lights, central A/C, HRV system, alarm system, video surveillance with 5 cameras, and full Cat6/coax wiring throughout for modern connectivity. Situated on a premium corner lot, the exterior features a double car garage with inside entry, paver stone double driveway, and a recently completed concrete patio-perfect for outdoor entertaining. Prime location close to top-rated schools, parks, walking trails, shopping plazas, restaurants, golf courses, and all essential amenities. Minutes to major highways and convenient transit options. A perfect blend of style, space, and location-this home is move-in ready and a must-see!

All Existing- Carbon Monoxide Detector, Dishwasher, Dryer, Garage Door Opener, Refrigerator, Smoke Detector, Stove, Washer, Window Coverings

The address 2147 Wateroak Drive was listed for sale (MLS# X13005524) on Thursday, April 16, 2026.

WHAT'S YOUR HOME WORTH?

Click here to get an instant estimate and track its value over time.

  • Date Listed: Thursday, April 16, 2026
  • Listing Brokerage: Royal Lepage Signature Realty - Disclaimer: The information contained in this listing has not been verified by Royal Lepage Signature Realty and should be verified by the buyer.
  • City: London North

    More 3 bedrooms homes for sale in London North

  • Neighbourhood: North S
  • Major Intersection: Wateroak Dr / Sedgefield Row
  • Full Address: 2147 Wateroak Drive, London North, N6G 0P9, Canada, ON, Canada
  • Amenities:
  • Taxes: $5,131.16 (2026)

Recently sold comparables in North S

Similar homes for sale

WHAT'S YOUR HOME WORTH?

Click here to get an instant estimate and track its value over time.