By

CALL
TOUR PROPERTY
×

4371 GREEN BEND Road in London South for sale

Asking price
$829,900
Estimate (Apr 15)
$809,187
MLS #:
X13001120
Type:
Detached, 2-Storey
Approx. SQFT:
1500-2000
Basement:
Full, Unfinished
3 3
2 42.11 x 107.58 ft lot

Listed by Century 21 First Canadian Corp.

4371 GREEN BEND Road is a Detached, 2-Storey and is currently for Sale @ $829,900. Taxes in 2026 were $0.00.

More homes for sale under 800k in London South

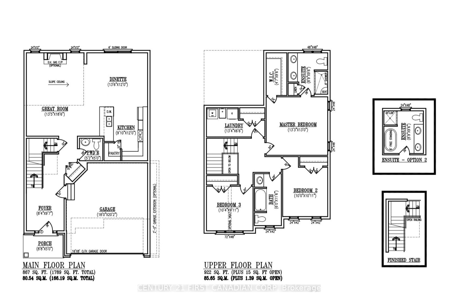
Welcome to your future home in the highly sought after Liberty Crossing community in Lambeth. The 2-Storey on 4371 GREEN BEND Road has 3 bedrooms, 3 bathrooms, and is located on a 107.58 x 42.11 ft lot in the community of South V . This to-be-built two storey home by Castell Homes, The Cole model, offers 3 bedrooms and 2.5 bathrooms on a premium lot backing onto green space. Built with quality craftsmanship and a functional layout, this home is designed for comfortable, modern living. The main floor features a bright, open-concept kitchen, dining area, and great room, ideal for both everyday life and entertaining. The kitchen includes a convenient pantry for added storage. A 2-piece powder room and inside access to the double-car garage complete the main level. Upstairs, the primary bedroom includes a walk-in closet and private 4-piece ensuite, with the option to upgrade to a 5-piece ensuite featuring a soaker tub. Two additional well-sized bedrooms, a full 4-piece bathroom, and a second-floor laundry room add to the home's practical layout. Located in a family friendly neighbourhood, Liberty Crossing offers a quiet suburban setting with easy access to everyday amenities. Close to shopping, schools, parks, and recreational facilities in Lambeth, with convenient connections to Highways 402 and 401 for commuting across London and Southwestern Ontario. Price reflects the proposed 2026 HST rebates. Final rebate amount is subject to the passing of Provincial and Federal legislation and Buyer's eligibility as per government guidelines, including primary residence or qualifying rental.

The address 4371 GREEN BEND Road was listed for sale (MLS# X13001120) on Tuesday, April 14, 2026.

WHAT'S YOUR HOME WORTH?

Click here to get an instant estimate and track its value over time.

  • Date Listed: Tuesday, April 14, 2026
  • Listing Brokerage: Century 21 First Canadian Corp - Disclaimer: The information contained in this listing has not been verified by Century 21 First Canadian Corp and should be verified by the buyer.
  • City: London South

    More 3 bedrooms homes for sale in London South

  • Neighbourhood: South V
  • Major Intersection: HAMYLYN ST
  • Full Address: 4371 GREEN BEND Road, London South, N6P 0K9, Canada, ON, Canada
  • Kitchen: Open Concept, Pantry
  • Amenities:
  • Taxes: $0.00 (2026)
Kitchen10 x 12 ft120 sq ft
Dining13 x 12 ft156 sq ft
Great Rm13 x 19 ft247 sq ft
Primary13 x 13 ft169 sq ft
Br10 x 11 ft110 sq ft
Br10 x 10 ft100 sq ft
Laundry13 x 6 ft78 sq ft

Recently sold comparables in South V

Similar homes for sale

WHAT'S YOUR HOME WORTH?

Click here to get an instant estimate and track its value over time.