By

CALL
TOUR PROPERTY
×

10263-1 Talbotville Gore Road in Southwold for sale

Asking price
$282,000
MLS #:
X12999790
Type:
Vacant Land, Other
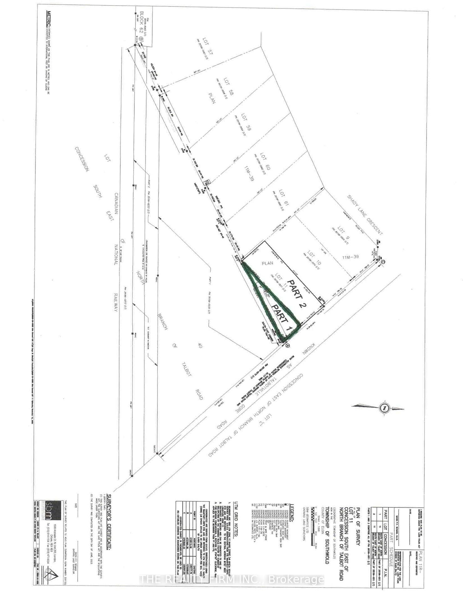
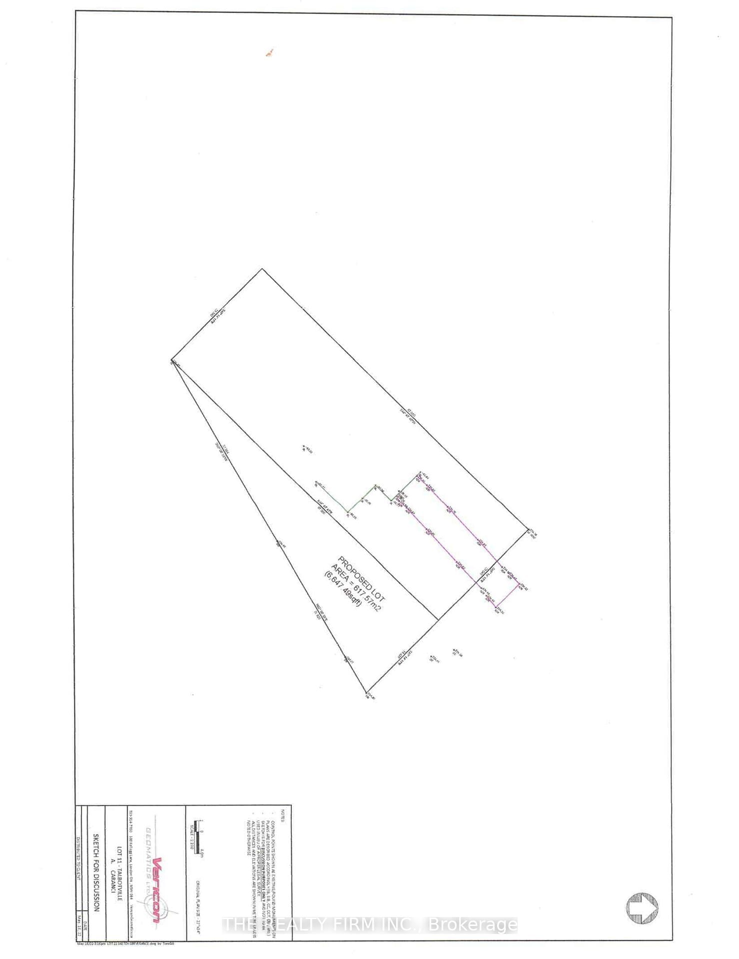
60 x 219 ft lot

Listed by The Realty Firm Inc..

10263-1 Talbotville Gore Road is a Vacant Land, Other and is currently for Sale @ $282,000. Taxes in 2026 were $0.00.

More homes for sale under 300k in Southwold

Serviced building lot close to town. The Other on 10263-1 Talbotville Gore Road has 0 bedrooms, 0 bathrooms, and is located on a 219 x 60 ft loton < .50 acres in the community of Talbotville .Bring your own builder or the vendor can assist in building or home plans.Come take a look at this unique lot with lots of mature trees.New 911, legal description upon registration of lot

The address 10263-1 Talbotville Gore Road was listed for sale (MLS# X12999790) on Wednesday, April 15, 2026.

WHAT'S YOUR HOME WORTH?

Click here to get an instant estimate and track its value over time.

  • Date Listed: Wednesday, April 15, 2026
  • Listing Brokerage: The Realty Firm Inc. - Disclaimer: The information contained in this listing has not been verified by The Realty Firm Inc. and should be verified by the buyer.
  • City: Southwold

    More bachelor bedroom homes for sale in Southwold

  • Neighbourhood: Talbotville
  • Major Intersection: Sunset Rd
  • Full Address: 10263-1 Talbotville Gore Road, Southwold, N5P 3T2, Canada, ON, Canada
  • Amenities:
  • Taxes: $0.00 (2026)

Recently sold comparables in Talbotville

WHAT'S YOUR HOME WORTH?

Click here to get an instant estimate and track its value over time.