By

CALL
TOUR PROPERTY
×

28 Deerview Drive in Ingleside for sale

Asking price
$909,500
Estimate (Apr 09)
$901,600
MLS #:
X12977464
Type:
Detached, Bungalow
Approx. SQFT:
1500-2000
Basement:
Unfinished
2 2
2 50 x 131 ft lot
PROPERTY HISTORY
SIGN IN REQUIRED
List Date List Price Last Status Sold Date Sold Price Days On Market
0000-00-00 $00000 Ter N/A N/A N/A
0000-00-00 $00000 Exp N/A N/A N/A

Listed by Royal Lepage Proalliance Realty.

28 Deerview Drive is a Detached, Bungalow and is currently for Sale @ $909,500. Taxes in 2025 were $0.00.

More homes for sale under 900k in Ingleside

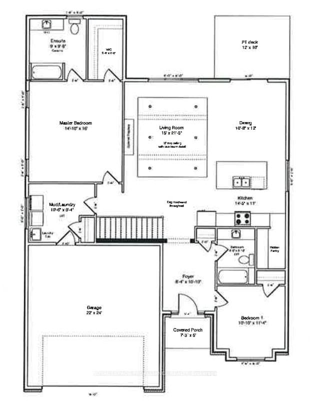
Customize your next home with Van Huizen Homes in the new community of Woodland Heights! This beautifully designed model features 2 spacious bedrooms on the main floor, plus two 4 piece baths. The Bungalow on 28 Deerview Drive has 2 bedrooms, 2 bathrooms, and is located on a 131 x 50 ft lot in the community of Murray Ward . The primary bedroom also boasts a large walk-in closet, offering plenty of storage. The open-concept living area is perfect for entertaining and includes a stunning tray ceiling in the living room that adds a touch of elegance. The kitchen is equipped with custom cabinetry and quartz countertops. Convenience is key with a mud and laundry room just off the attached two-car garage, offering an ideal space for coats, shoes, and other items. Step outside to the 10' x 12' rear deck, perfect for enjoying the outdoors or for that perfect BBQ. For those who need more space, the basement can be finished at an additional cost, adding two more bedrooms, a third bathroom, a recreation room, creating the ultimate space for relaxation and entertainment. Visit the model home at 37 Deerview Drive and experience the quality craftsmanship and thoughtful design for yourself! This new construction home does qualify for the new HST Rebate, with an after rebate value of $826,106.19!!

The address 28 Deerview Drive was listed for sale (MLS# X12977464) on Thursday, April 09, 2026.

WHAT'S YOUR HOME WORTH?

Click here to get an instant estimate and track its value over time.

  • Date Listed: Thursday, April 09, 2026
  • Listing Brokerage: Royal Lepage Proalliance Realty - Disclaimer: The information contained in this listing has not been verified by Royal Lepage Proalliance Realty and should be verified by the buyer.
  • City: Ingleside

    More 2 bedrooms homes for sale in Ingleside

  • Neighbourhood: Murray Ward
  • Major Intersection: Telephone Rd to Deerview Dr
  • Full Address: 28 Deerview Drive, Ingleside, K8V 5P4, Canada, ON, Canada
  • Living Room:
  • Kitchen:
  • Amenities:
  • Taxes: $0.00 (2025)
8 x 8 ft64 sq ft
Living15 x 21 ft315 sq ft
Dining11 x 12 ft132 sq ft
Kitchen15 x 11 ft165 sq ft
Mudroom11 x 9 ft99 sq ft
Primary14 x 16 ft224 sq ft
Bathroom9 x 10 ft90 sq ft
2nd Br10 x 11 ft110 sq ft
Bathroom6 x 8 ft48 sq ft

Recently sold comparables in Murray Ward

Similar homes for sale

WHAT'S YOUR HOME WORTH?

Click here to get an instant estimate and track its value over time.