Local real estate rules require that you sign in to view sold property information.
| List Date | List Price | Last Status | Sold Date | Sold Price | Days On Market |
|---|---|---|---|---|---|
| 0000-00-00 | $00000 | Ter | N/A | N/A | N/A |
| 0000-00-00 | $00000 | Ter | N/A | N/A | N/A |
Listed by Re/Max Niagara Realty Ltd, Brokerage.
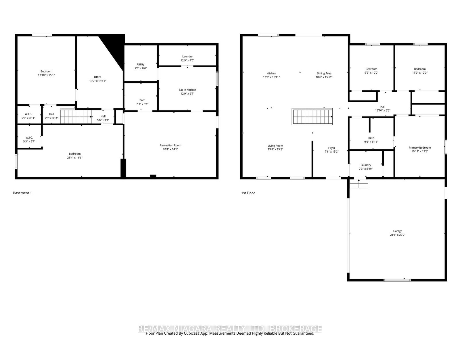
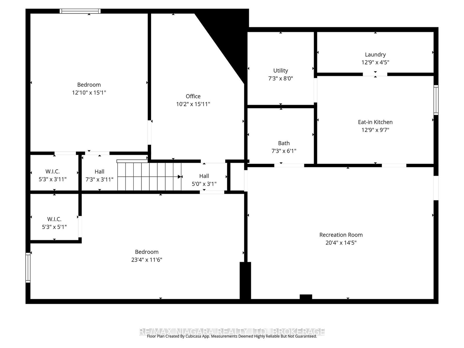
1164 Haist Road is a Detached, Bungalow and is currently for Sale @ $839,900. Taxes in 2025 were $5,284.00.
More homes for sale under 800k in Pelham
This well maintained bungalow sits on a beautiful, spacious lot in the heart of Fonthill. The Bungalow on 1164 Haist Road has 3 bedrooms, 2 bathrooms, and is located on a 110 x 72.67 ft lot in the community of Fonthill . The bright, open concept main floor features newer flooring and windows throughout, creating a welcoming and airy living space. The updated kitchen offers granite countertops, a center island, and seamless flow into the dining and living areas, perfect for everyday living and entertaining. The main level includes three generously sized bedrooms, including a primary bedroom with ensuite access, as well as the convenience of main floor laundry. Patio doors off the dining area lead to the fully fenced backyard, where you will find a patio with pergola, ideal for relaxing or hosting family and friends. The lower level offers exceptional versatility. The main home has access to a rec room and office, while a separate entrance leads to a self contained one bedroom in law suite complete with its own kitchen, living area, three piece bathroom, and laundry. This space is ideal for extended family, guests, or potential income. Additional features include a large driveway, double garage, and a Level 2 electric vehicle charger, offering modern convenience and functionality.
The address 1164 Haist Road was listed for sale (MLS# X12976862) on Thursday, April 09, 2026.