Local real estate rules require that you sign in to view sold property information.
Listed by Re/Max Tri-County Realty Inc Brokerage.
124687 MALL Road is a Detached, Bungalow and is currently for Sale @ $689,900. Taxes in 2025 were $3,195.00.
More homes for sale under 700k in Norwich
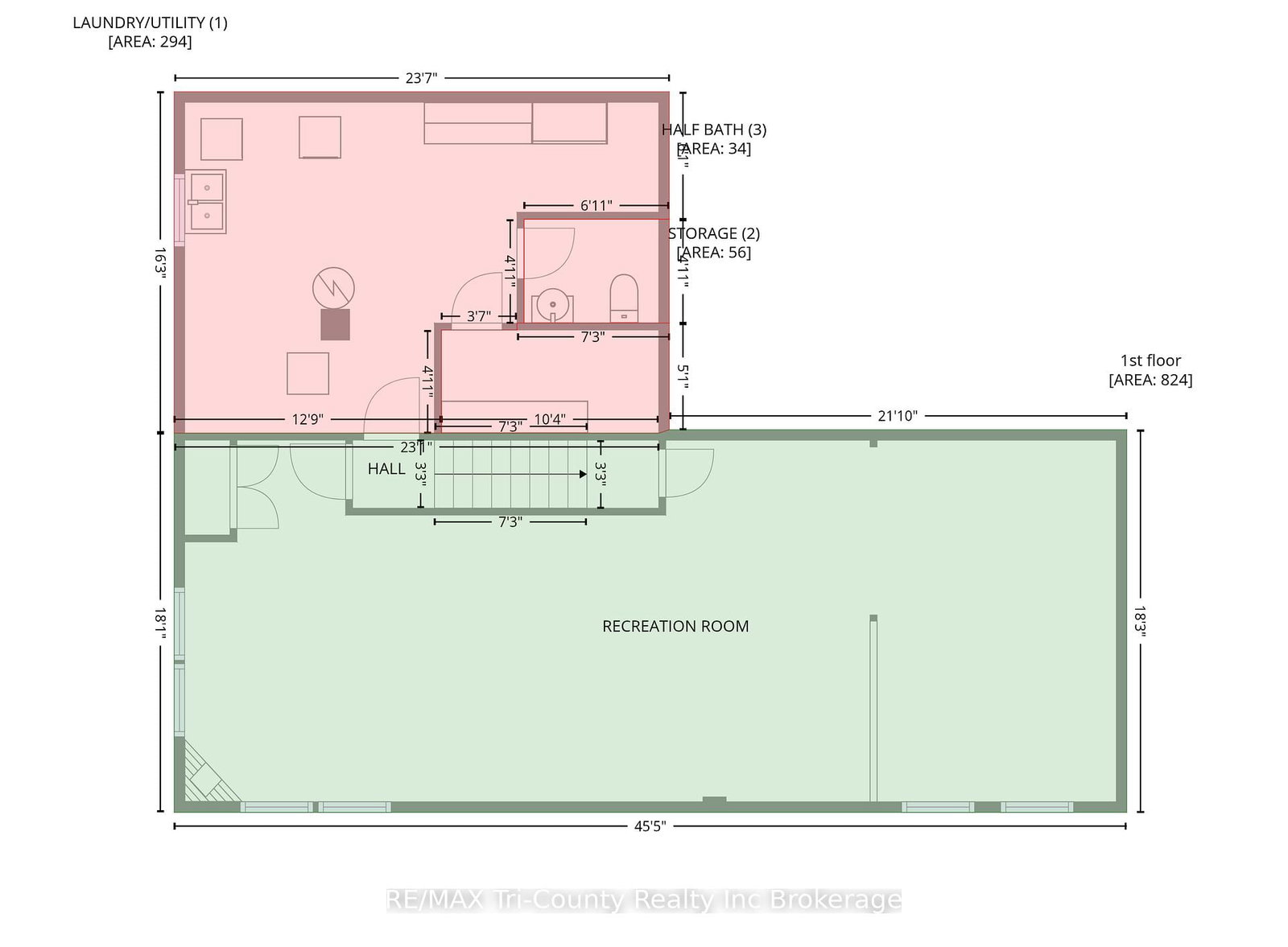
Welcome to 124687 Mall Road. The Bungalow on 124687 MALL Road has 3 bedrooms, 1 bathrooms, and is located on a 280 x 80 ft lot in the community of Rural Norwich . Located in a desirable area on the outskirts of Tillsonburg, this charming brick bungalow offers the perfect blend of convenience and privacy. Set on a spacious1/2 acre lot and backing onto open fields behind the cedars, you'll enjoy peaceful views right from your backyard. Situated behind the Norfolk Mall and along a bus route, the location is ideal for easy access to amenities. This home features 3 bedrooms and a functional layout highlighted by a large 3-season sunroom located at the front entrance an inviting space to relax and welcome guests. The finished rec room provides additional living and entertaining space. The property is serviced by municipal water, septic system. Additional features include an exterior electrical hookup at the rear ready for a hot tub, hydro in the shed, and a well in the backyard however, it has not been used by the Seller and its condition is unknown.
fridge, stove, washer, dryer, all window coverings and hardware. all attached light fixtures, water softener and hot water heater owned.
The address 124687 MALL Road was listed for sale (MLS# X12951302) on Thursday, April 02, 2026.