Local real estate rules require that you sign in to view sold property information.
Listed by Re/Max Delta Realty.
120 Mill Street is a Semi-Detached, Bungalow-Raised and is currently for Sale @ $585,000. Taxes in 2025 were $0.00.
More homes for sale under 600k in Champlain
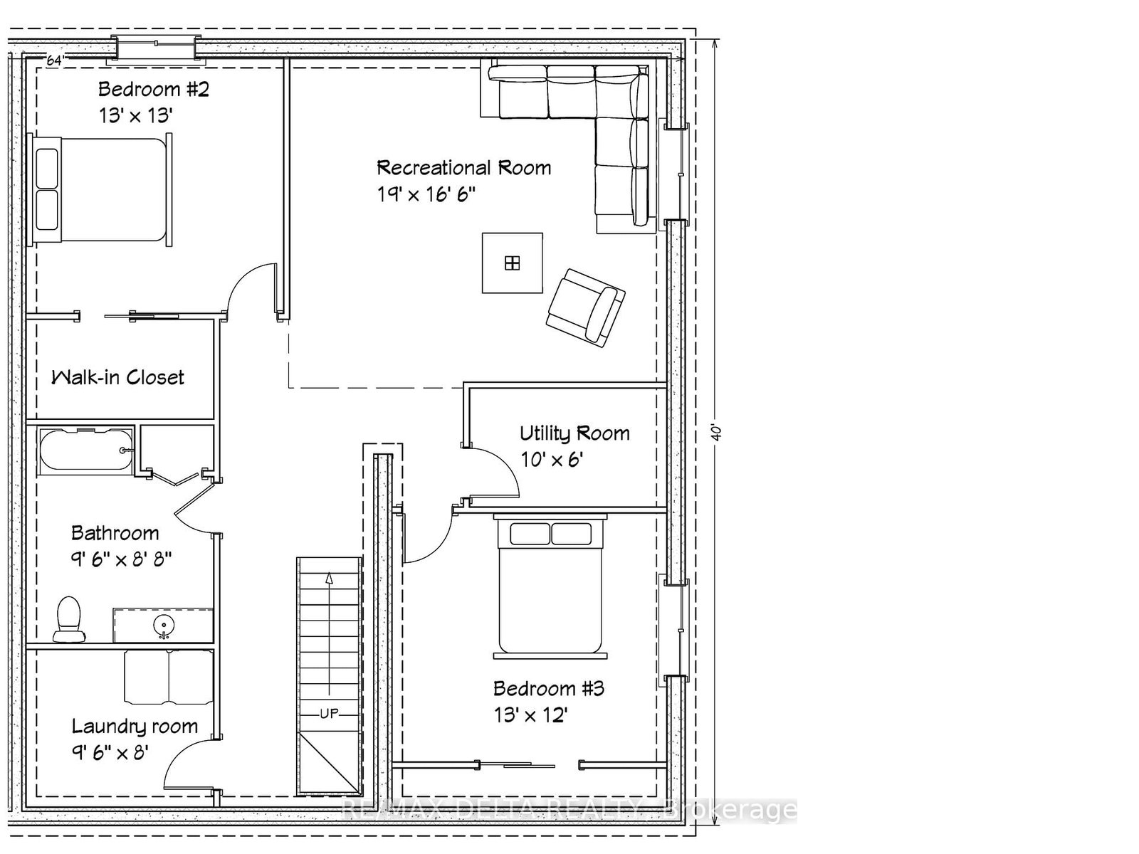
Your forever home is coming to life! This beautiful 1-bedroom semi-detached bungalow is being built in a well-established neighbourhood in picturesque Vankleek Hill. The Bungalow-Raised on 120 Mill Street has 1 bedrooms, 2 bathrooms, and is located on a 83 x 40 ft lot in the community of Vankleek Hill . Quality construction and custom design make this one a great investment in your future. This forever home is designed with adaptable spaces that grow with you through every stage of life, providing enduring style, long-term comfort, convenience, and lasting value. Enjoy the spacious feel of 9' ceilings. Benefit from advanced, energy-efficient construction that keeps indoor temperatures comfortable year-round while dramatically reducing utility costs. High-performance foundation materials, modern insulation and low-solar windows will create a quieter, healthier living environment with long-term savings built right in. Open-concept main floor living includes: kitchen with granite counter-tops, LR, DR, main floor bedroom, a full bath and laundry. Unfinished basement: Designed to accommodate 2 additional bedrooms, large recreation room, full bath and second laundry. Quality materials, smart layout choices. The basement can be finished at an additional cost. Fully landscaped with 2-car paved driveway, natural gas central heating, central A/C, Automatic Garage Door Opener, Composite and Vinyl Siding. Tarion New Home Warranty.
HWT, Auto Garage Opener.
The address 120 Mill Street was listed for sale (MLS# X12923110) on Thursday, March 26, 2026.