By

CALL
TOUR PROPERTY
×

4446 Morrison Street in Niagara Falls for sale

Asking price
$629,000
MLS #:
X12893760
Type:
Vacant Land, Other
50 x 150 ft lot
PROPERTY HISTORY
SIGN IN REQUIRED
List Date List Price Last Status Sold Date Sold Price Days On Market
0000-00-00 $00000 Sld Apr 30, 2024 $210,000
0000-00-00 $00000 Exp N/A N/A N/A

Listed by Re/Max Niagara Realty Ltd, Brokerage.

4446 Morrison Street is a Vacant Land, Other and is currently for Sale @ $629,000. Taxes in 2026 were $0.00.

More homes for sale under 600k in Niagara Falls

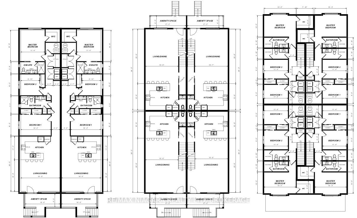
Rare Permit-Ready Multifamily Development Opportunity. The Other on 4446 Morrison Street has 0 bedrooms, 0 bathrooms, and is located on a 150 x 50 ft loton Not Applicable acres in the community of Downtown .Fully approved site plan with building permit ready for construction of a six-unit residential rental project consisting of two semi-detached buildings. Each building includes three spacious three-bedroom units, including basement apartments, designed to meet strong rental demand for larger family-oriented units.The approved development offers an excellent opportunity for investors or developers seeking a small-scale multifamily project with approvals already in place, significantly reducing development timelines and entitlement risk.Based on market rental estimates of approximately $2,200 per unit per month, the completed project may achieve gross annual rental income of approximately $158,400. Using standard vacancy and operating assumptions, the project presents the potential for strong long-term rental performance once stabilized. Buyers are advised to conduct their own due diligence regarding rents, operating costs, construction costs, and development feasibility.This is a unique opportunity to acquire a fully entitled six-unit rental development in a growing market with strong demand for larger rental units.

The address 4446 Morrison Street was listed for sale (MLS# X12893760) on Tuesday, March 17, 2026.

WHAT'S YOUR HOME WORTH?

Click here to get an instant estimate and track its value over time.

  • Date Listed: Tuesday, March 17, 2026
  • Listing Brokerage: Re/Max Niagara Realty Ltd, Brokerage - Disclaimer: The information contained in this listing has not been verified by Re/Max Niagara Realty Ltd, Brokerage and should be verified by the buyer.
  • City: Niagara Falls

    More bachelor bedroom homes for sale in Niagara Falls

  • Neighbourhood: Downtown
  • Major Intersection: Morrison and Saint Clair
  • Full Address: 4446 Morrison Street, Niagara Falls, L2E 2B3, Canada, ON, Canada
  • Amenities:
  • Taxes: $0.00 (2026)

Recently sold comparables in Downtown

Similar homes for sale

WHAT'S YOUR HOME WORTH?

Click here to get an instant estimate and track its value over time.