Local real estate rules require that you sign in to view sold property information.
| List Date | List Price | Last Status | Sold Date | Sold Price | Days On Market |
|---|---|---|---|---|---|
| 0000-00-00 | $00000 | Ter | N/A | N/A | N/A |
| 0000-00-00 | $00000 | Ter | N/A | N/A | N/A |
| 0000-00-00 | $00000 | Ter | N/A | N/A | N/A |
Listed by Re/Max Twin City Realty Inc..
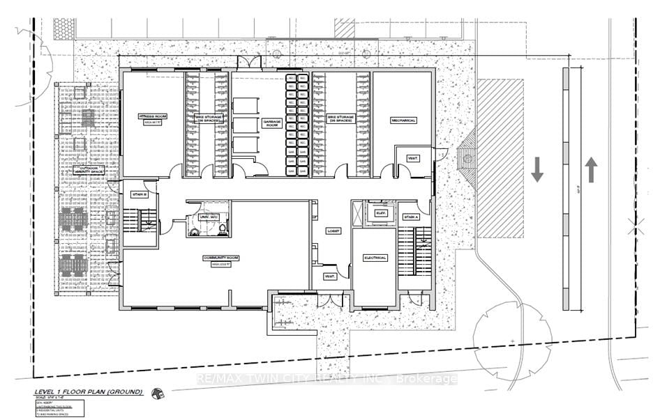
80 & 82 Base Line Road W is a Other, 2-Storey and is currently for Sale @ $1,600,000. Taxes in 2025 were $9,690.00.
More homes for sale under 1.6M in London South
DEVELOPMENT OPPORTUNITY - PRIME MULTI-RESIDENTIAL SITE. The 2-Storey on 80 & 82 Base Line Road W has 0 bedrooms, 0 bathrooms, and is located on a 143 x 150 ft lot in the community of South E . An exceptional opportunity to acquire a prime multi-residential development site in one of London's most desirable neighbourhoods. This half-acre property is fully rezoned for an 8-storey, 77-unit apartment building, allowing the next owner to proceed directly to the draft Site Plan Approval (SPA) phase. The site is currently tenanted, generating interim income to help offset holding costs, and is located just steps from Wortley Village with convenient access to transit, shops, restaurants, and green space, making it highly attractive to future renters. Existing zoning permits up to 12 storeys, with potential for additional density through underground parking, presenting a rare near-turnkey development opportunity in a high-demand rental market.
The address 80 & 82 Base Line Road W was listed for sale (MLS# X12861680) on Monday, March 09, 2026.