By

CALL
TOUR PROPERTY
×

31 Colborne Street in Rideau Lakes for sale

Asking price
$299,000
Estimate (Mar 04)
$294,071
MLS #:
X12842744
Type:
Detached, 2-Storey
Approx. SQFT:
2000-2500
Basement:
Full, Unfinished
6 6
180.2 x 119.97 ft lot

Listed by Rideau Realty Limited.

31 Colborne Street is a Detached, 2-Storey and is currently for Sale @ $299,000. Taxes in 2025 were $1,829.48.

More homes for sale under 300k in Rideau Lakes

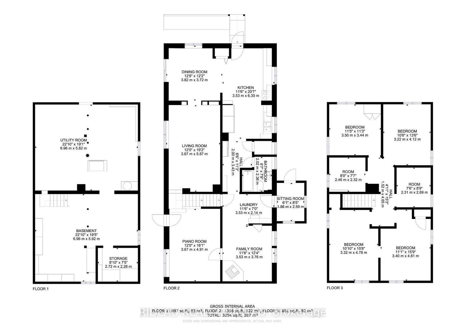
Set on just under half an acre in the Village of Portland, this spacious 6 bedroom, 1 bath home offers an exceptional opportunity and is ready for its next chapter. The 2-Storey on 31 Colborne Street has 6 bedrooms, 1 bathrooms, and is located on a 119.97 x 180.2 ft loton < .50 acres in the community of Rideau Lakes (Bastard) Twp .The main floor features a full kitchen with a dedicated dining area, living room, two family rooms, main floor laundry, and a 4 piece bathroom. The layout and overall square footage set this property apart, creating endless possibilities to reimagine the space and make it your own. One of the biggest highlights is the lot. Just under half an acre within village limits is a rare find! It provides ample space for gardens, recreation, or future enhancements, all while offering added privacy and room to grow. Ideally located within walking distance to everyday amenities including the grocery store, bank, LCBO, and local favourites such as Portside Pub, Recess Cafe, and Portland Family Restaurant, as well as the new public library and the Portland Public Beach...convenience is truly at your doorstep. Just 20 minutes to Smiths Falls and 45 minutes to Kingston, the location adds even more accessibility! If you've been searching for a large home with space, flexibility, and strong potential... This house is ready for you to make it home.

Fridge, Stove, Microwave, Washer, Piano, Oak Desk

The address 31 Colborne Street was listed for sale (MLS# X12842744) on Wednesday, March 04, 2026.

WHAT'S YOUR HOME WORTH?

Click here to get an instant estimate and track its value over time.

  • Date Listed: Wednesday, March 04, 2026
  • Listing Brokerage: Rideau Realty Limited - Disclaimer: The information contained in this listing has not been verified by Rideau Realty Limited and should be verified by the buyer.
  • Virtual Tour: View Virtual Tour for 31 Colborne Street
  • City: Rideau Lakes

    More 6 bedrooms homes for sale in Rideau Lakes

  • Neighbourhood: Rideau Lakes (Bastard) Twp
  • Major Intersection: Hwy 15 and Colborne St
  • Full Address: 31 Colborne Street, Rideau Lakes, K0G 1V0, Canada, ON, Canada
  • Kitchen:
  • Living Room:
  • Family Room:
  • Family Room:
  • Amenities:
  • Taxes: $1,829.48 (2025)
Kitchen12 x 21 ft252 sq ft
Dining13 x 12 ft156 sq ft
Living12 x 19 ft228 sq ft
Family12 x 12 ft144 sq ft
Family12 x 16 ft192 sq ft
Bathroom7 x 8 ft56 sq ft
Laundry12 x 7 ft84 sq ft
Br8 x 8 ft64 sq ft
2nd Br8 x 9 ft72 sq ft
3rd Br11 x 11 ft121 sq ft
4th Br11 x 14 ft154 sq ft
5th Br11 x 16 ft176 sq ft
Primary11 x 16 ft176 sq ft

WHAT'S YOUR HOME WORTH?

Click here to get an instant estimate and track its value over time.