Local real estate rules require that you sign in to view sold property information.
| List Date | List Price | Last Status | Sold Date | Sold Price | Days On Market |
|---|---|---|---|---|---|
| 0000-00-00 | $00000 | Exp | N/A | N/A | N/A |
| 0000-00-00 | $00000 | Sus | N/A | N/A | N/A |
| 0000-00-00 | $00000 | Sld | May 16, 2013 | $338,000 |
Listed by Real Broker Ontario Ltd.
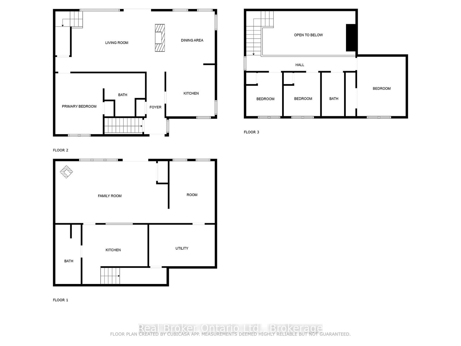
407047 Grey 4 Road is a Detached, 2-Storey and is currently for Sale @ $1,495,000. Taxes in 2025 were $4,830.00.
More homes for sale under 1.5M in Grey Highlands
The "Westwind" Retreat is a one of a kind county estate tucked away on almost 16 acres of natural beauty. The 2-Storey on 407047 Grey 4 Road has 5 bedrooms, 3 bathrooms, and is located on a 1026.72 x 578.35 ft loton 10-24.99 acres in the community of Grey Highlands . Completely out of sight from the main road, discover this serene property with it's beautiful 5 bedroom home with in-law suite, cultivated trails throughout the property, multiple outbuildings, 2 large ponds which flow into Little Beaver River, connecting to Lake Eugenia. From the moment you step onto its grounds, you are transported into a realm of enchantment and serenity that captures your imagination. This 5 bedroom chalet style home has a grand open living space, main floor primary bedroom with ensuite bath, 3 bedrooms on the upper level with 3 piece bath and a fully finished lower level with walkout and complete in-law suite featuring a separate kitchen. The home's architecture blends seamlessly with the natural surroundings. Enjoy truly spectacular sunsets off your back deck or back covered patio. Large windows offer panoramic views of the expansive ponds from every corner of the home while multiple outdoor seating areas bring you at one with nature. This property is more than just a place to live, it's a place to unwind, relax and call home. Fish from your own dock, take the kayak for a paddle and fall in love with this spectacular property. With year-round activities such as skiing at Beaver Valley/Devils Glen/Blue Mountain, snowmobiling, and golfing, this property is your gateway to Grey Highlands' all-season recreational paradise. Located just 5 minutes from Flesherton for all your day to day needs with Markdale Hospital close by, 35 minutes to Collingwood and Blue Mountain, and less than 2 hours from Toronto, this home makes for a rare getaway with endless possibilities. Discover the perfect blend of privacy, beauty, and convenience all in one property.
Refrigerator x2, Stove x2, Washer, Dryer, TV Mounts x2
The address 407047 Grey 4 Road was listed for sale (MLS# X12766810) on Friday, February 06, 2026.