Local real estate rules require that you sign in to view sold property information.
| List Date | List Price | Last Status | Sold Date | Sold Price | Days On Market |
|---|---|---|---|---|---|
| 0000-00-00 | $00000 | Ter | N/A | N/A | N/A |
| 0000-00-00 | $00000 | Ter | N/A | N/A | N/A |
| 0000-00-00 | $00000 | Sld | Dec 03, 2015 | $340,000 |
Listed by Royal Lepage Rcr Realty.
251 MILL Road is a Farm, 2-Storey and is currently for Sale @ $1,290,000. Taxes in 2025 were $5,066.00.
More homes for sale under 1.3M in Chatsworth
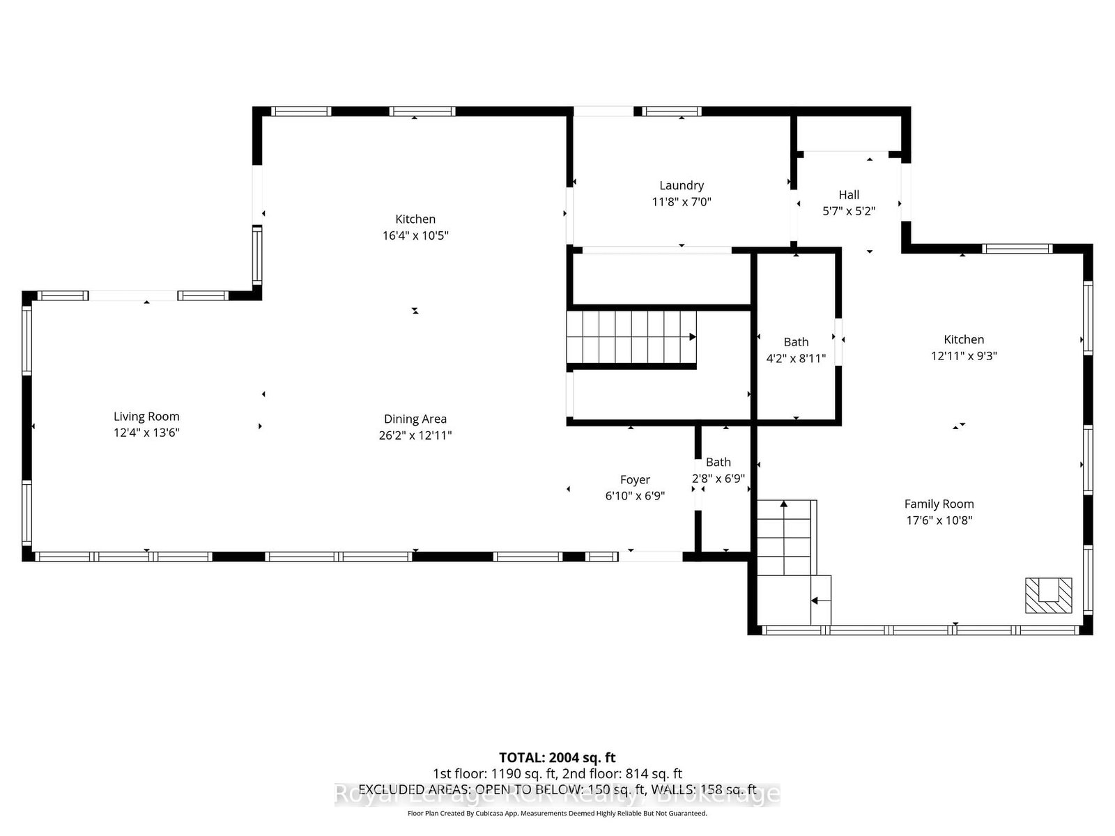
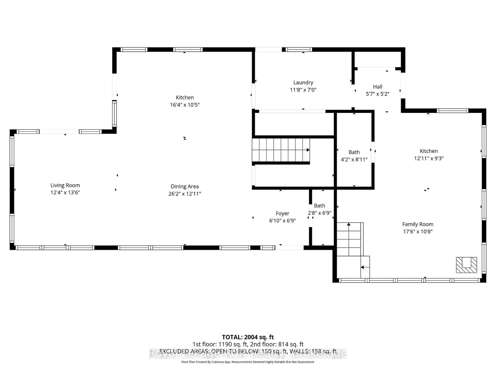
Custom-built (2015) architect designed home with accessory apartment set on 151 picturesque acres. The 2-Storey on 251 MILL Road has 4 bedrooms, 3 bathrooms, and is located on a 3361 x 1986 ft loton 100 + acres in the community of Chatsworth . The property features a large swimming pond, Hamilton Creek, and sweeping panoramic views over rolling hills. A long, scenic, tree-lined laneway leads to an open field showcasing the residence, a 1,200 sq. ft. double-walled greenhouse ( built in 2023 with automatic vents), outdoor sauna and a charming guest area complete with a newer Jayco trailer and deck.The main home offers passive solar design with enhanced insulation, in-floor heating with separate loops, 12' ceilings and an open-concept design. The main house features a great room with kitchen/dining/living room including cookstove, large island, 2 piece bathroom and lots of windows for the views. The upstairs includes three bedrooms, office space in hallway and a full bathroom. The accessory apartment features an open living room and kitchen with large island and woodstove, a bathroom with walk-in shower, and a loft-style bedroom. Laundry is a shared space between both units, making this an ideal setup for rental income or multi-generational living. The attached insulated garage has entry doors on both ends and a Tesla charger. The covered porch offers additional versatility-perfect for a hot tub or future enclosed living space as it has an in-floor heat loop and insulated roof . Metal roof on main house and flat roof on the garage. The land is a beautiful mix of forest, pasture, workable acreage, large pond, and creek, providing privacy, recreation, and stunning natural surroundings. Approximately 40 acres workable (possibly more), of which approx. 20 have been recently amended, renovated and re-seeded to hay/pasture. Property taxes are kept lower through forest and conservation land reductions.
2 fridges, 2 stoves, washer, ductless dryer, cook woodstove, apartment woodstove, old truck bed, Jayco trailer, outdoor sauna
The address 251 MILL Road was listed for sale (MLS# X12760062) on Wednesday, February 04, 2026.