Local real estate rules require that you sign in to view sold property information.
Listed by Property.Ca Inc..
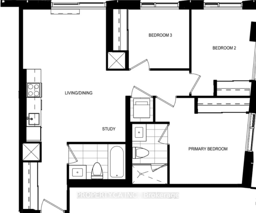
#1102-1660 Bloor Street W is a Condo Apt, Apartment and is currently for Lease @ $3,700. Taxes in null were $0.00.
More condos for lease under 3.7k in Toronto
Welcome to High-Floor Luxury at 1660 Bloor Street West. The Apartment on #1102-1660 Bloor Street W has 3 bedrooms, 2 bathrooms, and is located in the community of High Park North . This brand-new, impeccably upgraded 3-bedroom, 2-bathroom corner suite offers over 900 sq. ft. of sophisticated living on the 11th floor. Perfectly positioned with a desirable Northwest exposure, the unit is flooded with natural light through soaring floor-to-ceiling windows, offering expansive sunset views and a bright, airy atmosphere throughout. Standing out from standard layouts, this suite features premium upgrades including sleek vinyl flooring, a second bedroom, and automatic remote-controlled blinds on every window. The chef-inspired kitchen is a centerpiece, boasting elegant quartz countertops, panel-ready Italian appliances, and a builtin microwave. Both the foyer and all three bedrooms are equipped with closets with sliding doors for a cohesive, high-end design. The bathrooms are equally refined, featuring upgraded vanities, built-in medicine cabinets, and sleek glass tub screens. Residents will enjoy independent climate control via a smart thermostat, along with the convenience of one parking spot with an ev charge and one locker. Step out onto your private balcony to enjoy the fresh air, or take advantage of the building's elite amenities, including a fully equipped gym, party room, pet spa, and a spectacular rooftop terrace with 180-degree panoramic city views. Located in the heart of a vibrant community, you are steps away from Keele Subway Station, High Park, and the boutiques and cafes of Dundas West. This is a rare opportunity to secure a spacious, never before lived in, high-floor 3-bedroom residence in one of Toronto's most sought-after luxury buildings steps to everything you may need on Bloor St W.
Fridge, Stove, Dishwasher, Microwave, Washer/Dryer, 1 Parking Spot, 1 Locker, Parking spot includes EV charger. Rogers Internet also included.
The address #1102-1660 Bloor Street W was listed for lease (MLS# W13022006) on Monday, April 20, 2026.